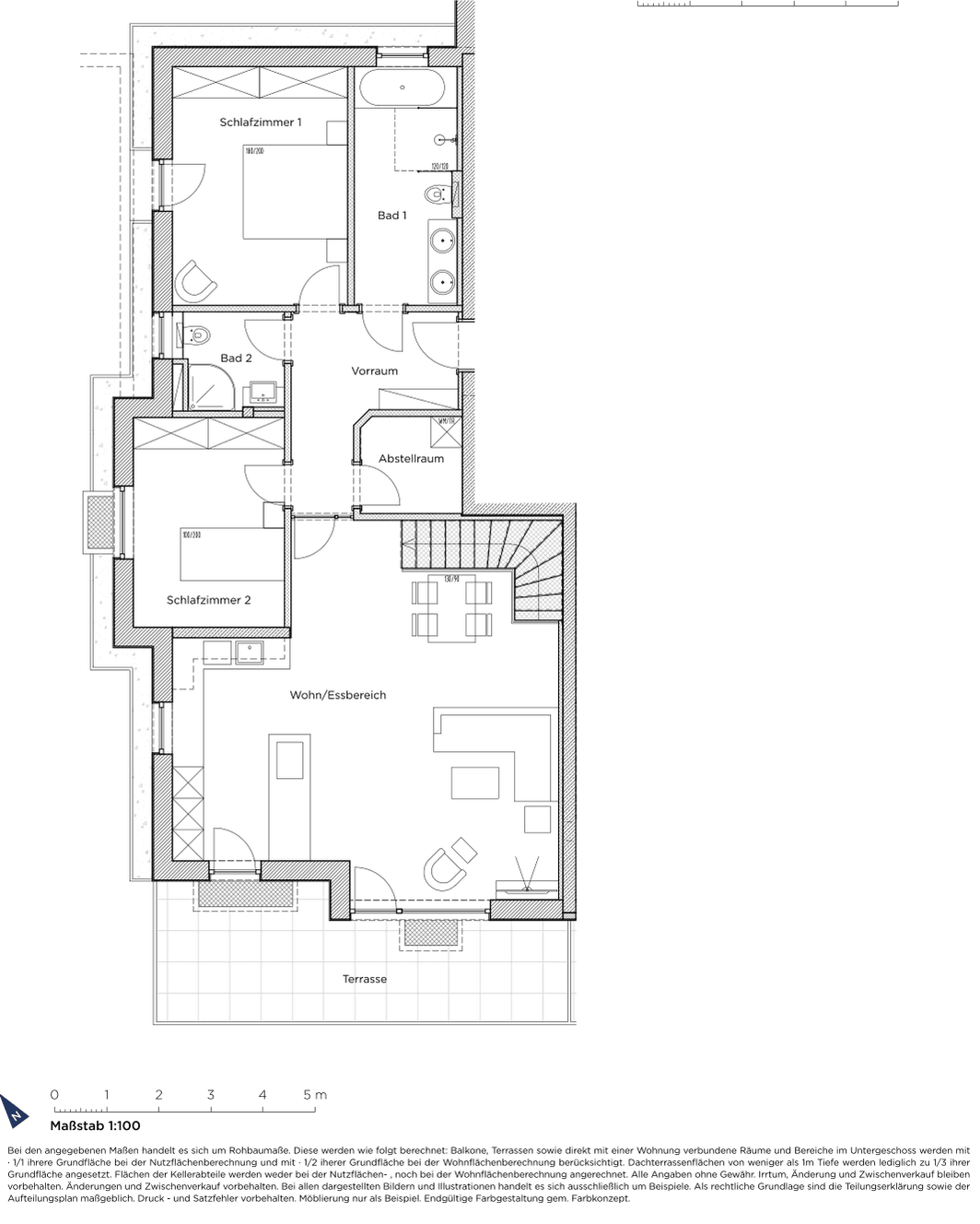
Neusatzerstraße 3 - Trudering | Smartkonzept